Arbeidsprinsipp for mutterbøtteheis

Z-type heis, fullt navn: Z-type roterende bøtteheis. Produktet til denne heisen er i et lukket kabinett. Motoren med variabel hastighet driver kjedet, for å få beholderen på kjedet til å bevege seg i en ring, drive beholderen på kjedet for å løfte og transportere materialer, og starte losseanordningen for å fullføre enkeltpunkts- eller flerpunktslossing (multi-punktslossing er ikke multi-punktslossing samtidig) når den utformede avlastningsbeholderen når porten.
Roterende skuffeheis har Z-type, C-type, blandet type og horisontal type, og dens arbeidsprinsipp og egenskaper er de samme. De transporteres horisontalt, vertikalt og horisontalt i granulære og små biter. De har kompakt struktur, liten gulvflate, stor løftehøyde, god tetteevne og ingen skade på materialer.
Hva er forskjellen mellomMutterbøtteheisog annet transportutstyr?
Universaltransportører inkluderer båndtransportører, skruetransportører, etc., som vanligvis er horisontale. Z-bøtteheis er et mye brukt lineært transportutstyr. I motsetning til dette kan bøtteheisen av Z-typen transportere materialer i en rett linje, forkorte transportlinjen til løftehøyden, gjøre systemet kompakt, og bøtteheisen av Z-typen har god tetning. Arbeid inne i huset har en bedre tettefunksjon, noe som kan redusere miljøforurensning.
Funksjoner
1. Miljøvennlig
Skallet til hele maskinen er forseglet, og det er ingen lekkasje og støv som flyr under drift, noe som oppfyller kravene til miljøvern.
2. Null skade
Hele prosessen med mating, transport og lossing har ingen skade på selve gjenstanden og reduserer skraphastigheten.
3. Flere modeller
Den kan brukes i Z-type, C-type og ZC blandet type, og passer for ulike anledninger.
4. Flerpunktsblanking
Enkeltpunkt eller fler{0}}punkts automatisk blanking er tilgjengelig, som er egnet for mating av flere siloer på rad.
5. Anti-overløpsmateriale
Den kan utstyres med vibrerende mater og ensartet innstrømming, som overvinner fenomenet med full bøtteoverløp.
6. Spar plass
Kompakt struktur og liten gulvflate.
7. Tilpasset av brukere
Den kan utformes i henhold til kundens nettsted. Den horisontale lengden er 1,2m til 30m, og den vertikale høyden er 1,5m til 30m. For mer enn 30m kan dobbel maskinparallellkobling brukes for å møte behovene til forskjellige steder
Teknisk parameter
|
Z-taljemodell |
ZX-160 |
ZX-330 |
ZX-500 |
ZX-650 |
|
Transportkapasitet m³/t |
2.9-4.8 |
6.0-10.0 |
25.4-42.3 |
32.9-54.9 |
|
Modell |
ZX-250 |
ZX-400 |
ZX-530 |
ZX-800 |
|
Transportkapasitet m³/t |
4.6-15.7 |
15.2-25.2 |
20-33.4 |
40.6-67.6 |
Note:
1. Bøttevolumet i tabellen er beregnet bøttevolum, og transportvolumet er beregnet etter fyllfaktoren 0,6.
2. Beholder: ABS-beholder av næringsmiddelkvalitet/beholder i rustfritt stål/beholder av karbonstål
Strukturen
Z-serien talje er sammensatt av løpende deler, drivenhet (sakte roterende enhet), øvre enhet, midterste foringsrør og nedre enhet.
Løpende deler----består av trakt og hylserullekjede.
Kjøreenheten - bruker Y-seriens motor, reduksjon og kjededriftsreduksjon osv. (elektronisk kontrollbryter bruker-definert).
Sakte-kjørende enhet-som tar i bruk en girmotor, koblet med en reduksjonsanordning og en kjededriftsreduksjonsenhet gjennom en clutch, vanligvis brukt under vedlikehold av utstyr, denne enheten er en bruker-valgbar enhet.
Heisdrivenheten med mutterbøtte er delt inn i to typer: venstre-montert og høyre-montert:
Installasjon på venstre-side: Mot innmatingsporten er kraften til drivenheten på venstre side av dekselet.
Høyre-montert: Mot mateporten er kraften til drivenheten på høyre side av dekselet.
Øvre enhet - utstyrt med øvre tannhjul, hovedaksel og utløpsport.
Midtseksjon - Midtseksjonen inkluderer: den første seksjonens midtseksjon, standard midtseksjon, midtseksjonen med inspeksjonsdør og den ikke-standard midtseksjonen.
Nedre enhet - installert med nedre tannhjul, haleaksel og strammeenhet osv. (bryter for materialnivå, brukerdefinert hastighetsbryter-).
Strukturelle egenskaper
Beholder:For å møte kundenes behov finnes det ulike materialer som nylon, ABS, PP, rustfritt stål 304, rustfritt stål 316L, rustfritt stål 310, karbonstål, etc.
Kjede:Ved å bruke kjede av kjente innenlandske merkevarer, bruker vår mekaniske transportørkjede med roterende bøtte, selvsmørende-rulletransportørkjede med stor stigning. Derfor reduseres friksjonstapet til kjeden i bruk, kjedens levetid forlenges, og vedlikeholds- og utskiftingskostnadene reduseres.
Chassis:Hele maskinen kan være laget av karbonstål kaldplate elektrostatisk sprøyting eller rustfritt stålstruktur
Formidlingstype:Roterende bøttetransportør transporterer materialer i en lukket kropp, og transporterer materialer gjennom en trakt opphengt i en kjede. Den modulære designen kan realisere et bredt spekter av konfigurasjoner og kan kombineres horisontalt, vertikalt og horisontalt. Z-type, C-type, E-type, L-type, R-type kan også være multi-punktsmating, multi-punktsavlasting, hele maskinen er fullstendig forseglet, ingen forurensning, ingen lekkasje, ryddig og rent, og fleksibel sammensetning, kan brukes vertikalt og transporterer loddrett innvendig og transporterer horisontalt innvendig. maskiner som er enkelt å installere og modifisere.
Typer og utslippsmaterialer
Denne enheten kan brukes i en rekke miljøer som krever skånsom håndtering. Z-type fôring, C-type fôring, Z-C blandet fôring og fler-punktsfôring, fler-punkts lossing og andre anledninger. For tiden brukes den mest til fôring av veie- og pakkemaskiner, fôring og re-valg av fargesorteringsmaskiner, tre-dimensjonal sirkulasjonslasting og lossing av automatiske produksjonslinjer, og multi-punktmating av automatiske veie- og batchsystemer.

Når heisen av Z-type har flere utløpsporter, hvordan realiserer heisen av Z-type utløpet?
Basert på kundenes behov gir vi kundene tre lossemetoder som kundene kan velge:
Manuell lossing, pneumatisk lossing, elektrisk lossing.
Kundevarsel
Hvis du vil ha informasjonen, videoen og produktprisen for bøtteheis av typen Z-, vennligst oppgi følgende informasjon: størrelsesinformasjon; bearbeiding av råvarer (materialer): navn □ egenvekt □ fuktighetsinnhold □ temperatur □; forholdene på stedet; spesielle krav.
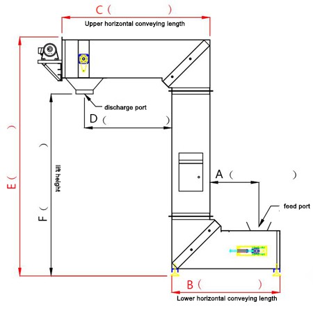
Vennligst oppgi lengden på A, D og F i figuren nedenfor, eller lengden på B, C og E

Hvilke bransjer eller materialer erMutterbøtteheis egnet for?
Z-heisen er egnet for horisontal-vertikal-horisontal transport av bulkmaterialer, hovedsakelig med transport av ikke-viskøse materialer som granulat og pulver. Et bredt spekter av bruksnæringer, inkluderer hovedsakelig: ildfast industri, plastindustri, aktivert karbonindustri, kjemisk metallurgiindustri, byggematerialer og miljøvernindustri, gjødselindustri, ikke-metallisk gruvedrift, etc.
Løft materiale
Næringsmiddelindustri: kjeks, gummier, marshmallows, små dampede boller, pannekaker, kyllingessens, potetgull, risnudler, dumplings, peanøtter, melonfrø, pistasjnøtter, ris, etc.
Kjemisk industri: plastgranulat, aktivert karbon, konserveringsmidler, tilsetningsstoffer, gjødsel, etc.
Farmasøytisk industri: kapsler, tabletter, piller, etc.
Maskinvareindustri: skruer, muttere, metallbeslag, etc.

Vanlige problemer
1. Beholderbeltet glir.
Juster håndhjulet på fasttelefonen og stram traktbeltet.
2. Lageret er støvete og dårlig smurt.
Rengjør lagrene og tilsett nytt fett.
3. Transmisjonsremmen glir eller faller av, eller girenheten svikter.
Stram drivremmen for å eliminere feilen til girenheten.
4. Beholderskruen er løs eller faller av, og beholderen beveger seg eller faller av. Stopp for inspeksjon, stram til beholderskruene og juster beholderens posisjon.
Forholdsregler
1. Den granulære bøtteheisen av Z-type administreres av en spesiell person, og strømbryteren kontrolleres regelmessig.
2. For å forbedre sikkerheten ved bruk, må taljen installere en heisebegrenser og en reisebegrenser. La remskiven løfte seg til avstanden fra spolen.
3. 300mm kan få taljen til å stoppe automatisk, og kan også utføre prøveløfting.
4. Taljen skal ha lastskilt, og vekten skal ikke overbelastes ved løft og senking.
5. Etter at taljen begynner å sende strøm, kontroller arbeidsforholdene til taljebegrenseren, reisebegrenseren og sperrebryteren for å se om de er normale.
6. Før løfting eller landing kan bilen kjøres først etter at klokken ringer.
7. Den industrielle pelletmatingstransportøren har ikke lov til å frakte folk opp og ned.
8. Etter at arbeidet er fullført, skal den hengende platen til partikkelbøtteheisen falle til bakken, deretter kutte strømforsyningen og lukke de øvre og nedre rekkverksdørene.
9. Hold alltid miljøet rundt partikkelen Mutterbøtteheis hygienisk.
Smøremateriale, syklus og metode for bøtteheis
|
Navn på smøredel |
Smørende materiale |
Smøresyklus |
Smøremetode |
|
Peiling |
Vannbestandig fett |
200 timer |
med en smøremaskin |
|
Bakstopp |
Vannbestandig fett |
50 timer |
med en smøremaskin |
|
Spenningsbolt |
Vannbestandig fett |
500 timer |
smøre |
|
Hastighetsdemper |
I henhold til spesifikasjonen til den utstyrte reduksjonen |
6 måneder |
helle |
|
Elektrisk motor |
Vannbestandig fett |
6 måneder |
helle |
Våre garantier og tjenester
Før-salgstjeneste:
- Veiled kundene til å velge riktig utstyrsmodell.
- Send ingeniører og teknisk personell til produksjonsstedet i tide for å planlegge stedet for kunder, designe fornuftige prosesser og løsninger.
- Vi kan designe og produsere produkter i henhold til kundenes spesielle behov for å møte de ulike behovene til investorer
Tilbudstjeneste:
- Streng inspeksjon av produktene før de forlater fabrikken
- Sendes i henhold til kontrakt
Service etter-salg:
- Hovedgarantiperioden for utstyret som selges av vårt selskap er ett år (bortsett fra feil eller skade forårsaket av menneskelige faktorer, drivstofffaktorer eller uimotståelige naturfenomener, og sårbare deler dekkes ikke av garantien: drivstoffinjektorer, pumpehoder, lysfølsomme øyne, etc.).
- Hvis utstyrsfeilen er forårsaket av menneskelige faktorer, vil kostnaden bli belastet i henhold til fabrikkprisen.
- Etter å ha mottatt garantivarselet, svar innen 2 timer. 24 timer teknisk veiledning for å løse problemer.
Om Odifei Company

Zhengzhou Odifei Machinery Equipment Co., Ltd. har fokusert på transportutstyr i 17 år. Hovedvirksomheten er: spiralvibrasjons vertikal heis, lamellmater, kjedeplatetransportør, lamelltransportør, skrapetransportør, storvinkelbåndtransportør, skruetransportør, kjedebøttetransportør, TD beltebøtteheis, TH-ringkjedebøtteheis, NSE bøtteheis og andre bøtteheis, NSE heiser. TD75 båndtransportør (eller båndtransportør), mobil transportør, båndtransportør med store skråningsvinkelribber; skrue conveyor; shaftless skrue conveyor; lett, middels og tung kjedeplatetransportør; kjede bøtte conveyor maskin; SCD bunn klinker conveyor; horisontal dobbel aksel mikser; lett, middels og tung platemater; GZG motor vibrasjon mater; trommel skjermen; shaftless trommel skjermen;
I 2010 gikk selskapets FoU-team inn i ressursresirkuleringsindustrien, og utviklet suksessivt skjelletransportører for husholdningsavfall, siling og sortering av skaftløse trommelsikter, byggeavfallsmatere og skjellende skraptransportører i elektriske lysbueovner, som ikke bare skaper. kjede.
Zhengzhou Odifei Machinery Equipment Co., Ltd. har kontinuerlig utført teknologisk innovasjon i en ånd av fortreffelighet, og har utviklet flere praktiske nye produkter. Produktet er avansert i design, fint i produksjon, pålitelig i ytelse, har internasjonalt avansert nivå, selger godt i inn- og utland, og har som mål å være industrileder!

FAQ
Spørsmål: Bøtteheiser består av noen komponenter
A: Beholder: festet på båndet (eller trekkkjeden), det er tre typer
Dyp bøtte - egnet for løse materialer;
Grunne bøtte - materialer med høy viskositet;
Trekantbøtte - tunge og klumpete materialer
Skal: Innebygd-girkasse og stopper.
Kropp: Den tynne stålplaten sveises inn i et firkantet skall, og installasjonen avvikes.
Nederst: Installer strammeanordning.
Spørsmål: Det finnes flere typer bøtteheiser
A: 1. I henhold til layoutformen: den kan deles inn i vertikal type og skråstilt type
2. I henhold til forskjellige utslippsmetoder: den kan deles inn i sentrifugal, tyngdekraft og hybrid.
3. I henhold til forskjellige lademetoder: den kan deles inn i utgravingstype og injeksjonstype.
4. I henhold til strukturen til beholderen: den kan deles inn i grunn bøtte, dyp bøtte og trekantet bøtte.
5. I henhold til forskjellige trekkkomponenter: den kan deles inn i tape og stålkjede.
Spørsmål: Hva er arbeidsprinsippet for bøtteheis
A: Transportarbeidsprinsippet til bøtteheisen er som følger: beholderen øser opp materialet fra lageret under, løfter det til toppen med transportbåndet eller kjedet, snur ned etter å ha forbigått topphjulet, og bøtteheisen dumper materialet i det aksepterte sporet. Drivremmen til den belte-drevne bøtteheisen bruker vanligvis et gummibelte, som er installert på den nedre eller øvre drivtrommelen og de øvre og nedre omdirigeringstromlene. Den kjede-drevne bøtteheisen er vanligvis utstyrt med to parallelle overføringskjeder, med et par overføringshjul på toppen eller bunnen, og et par omdirigerende tannhjul på bunnen eller toppen. Bøtteheisene er generelt utstyrt med foringsrør for å hindre at støv flyr i bøtteheisene.
Spørsmål: Hva er fordelene og ulempene med bøtteheiser?
A: Fordeler:
1. Strukturen er enkel, sidestørrelsen er liten, og gulvplassen er liten.
2. Løftehøyden er stor, transportkapasiteten er god, kroppen er helt lukket, og miljøforurensningen er liten.
3. Lavt strømforbruk.
Mangel:
1. Den er lett å blokkere når den er overbelastet, og beholderen er lett å ha på seg.
2. Den er kun egnet for transport av pulver, granulær og små og mellomstore bulklaster, som korn, kull, sand osv.
3. Varene kan ikke transporteres i horisontal retning.
Spørsmål: Er du en fabrikk eller et handelsselskap? Når du bygger enMutterbøtteheis, Hvilke andre materialer er bøtteheiser egnet for?
A: Vi er en fabrikk, etablert i 2007, som spesialiserer seg på produksjon av vertikale vibrasjonsheiser, vertikale vibrasjonsheiser, bøtteheiser, beltetransportører, vekttransportører, skruetransportører, etc. Bøtteheis kan brukes i kjemisk industri, keramisk industri, næringsmiddelindustri, metallurgisk industri, etc.
Spørsmål: Hva med reservedeler?
A: Vi leverer alltid reservedeler til kostpris og gir deg en liste over reservedeler når du kjøper maskinen.
Spørsmål: Vil du teste mutterbøtteheisen før levering?
A: Ja, vi vil teste hver maskin og produksjonslinje før levering, og sende arbeidsvideoen til deg. Du kan også sjekke med oss før levering.

Anskaffelsesprosess

Z-Type bøtteheis (C-Typeheis) Brukere kan velge konfigurasjon:
Chassis: rustfritt stål chassis/karbonstål sprøyte chassis
Beholder: ABS-beholder av næringsmiddelkvalitet/beholder i rustfritt stål/beholder av karbonstål
Kjede: kjede av legert stål/kjede i rustfritt stål
Tannhjul: Kedjehjul i legert stål/kjedehjul i rustfritt stål
Drive: vanlig motor/eksplosjonssikker-motor/motor med variabel frekvens
Kontroll: Manuell/Automatisk (kan tilpasses etter kundens krav)
Z-bøtteheis er en ny type materialtransportutstyr som har blitt utviklet med suksess ved å integrere avansert teknologi i bransjen. Siden heisen Z-type ble lansert på markedet, kan den raskt tilpasse seg produksjonsbehovene, og mange sett med produkter har blitt brukt i miljøtekniske maskineri, metallurgi, kjemisk industri, gjødsel og andre industrier.
Hvordan få et tilbud?
Siden heisen av Z-type er et mekanisk produkt, har den en viss grad av profesjonalitet, så det er nødvendig å sitere før tilbud.
For å kommunisere med kunder følgende informasjon:
1. Hvilket materiale formidler kunden?
2. Hva er hovedvekten av materialet?
3. Hva er den øvre horisontale avstanden og den nedre horisontale avstanden? Hva er transporthøyden?
4. Hva er det nødvendige leveringsvolumet per time?
5. Andre, som f.eks.: materialfuktighetsinnhold, utstyrsmateriale o.l.
Vennligst oppgi lengden på A, D og F i figuren nedenfor, eller lengden på B, C og E

Hvis du er interessant i Nut bøtteheis, vennligst kontakt oss innen 24 timer!
Velkommen til å besøke fabrikken vår!!!
Populære tags: mutter bøtte heis, Kina mutter bøtte heis produsenter, leverandører, fabrikk











